
CZ.06.04.01/00/22_037/0007553
Předmětem projektu jsou dodávky včetně montáže pro 6 nových odborných učeben ve třech objektech tří základních škol v Chomutově, souvisejících se stavebními úpravami v objektech (dále také jako „dodávka“), přičemž se dodávka dělí na sekce:
sekce 1. (ZŠ Chomutov Ak. Heyrovského 4539)
učebna přírodní vědy (biologie a chemie (229)
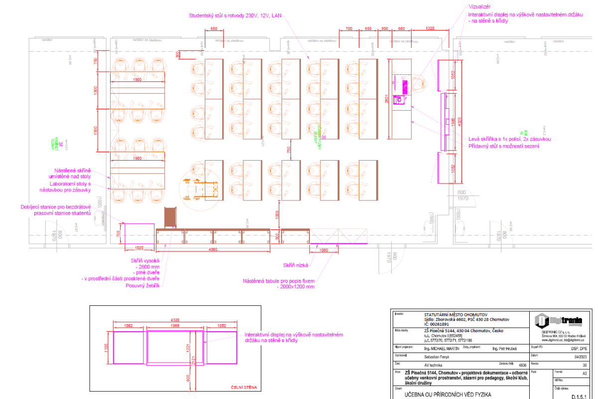
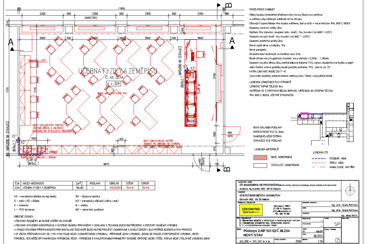
učebna přírodní vědy (fyziky a zeměpisu (234)
sekce 2. (ZŠ Chomutov Hornická 4387)
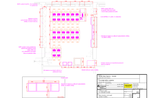
učebna přírodní vědy s využitím IT (90)
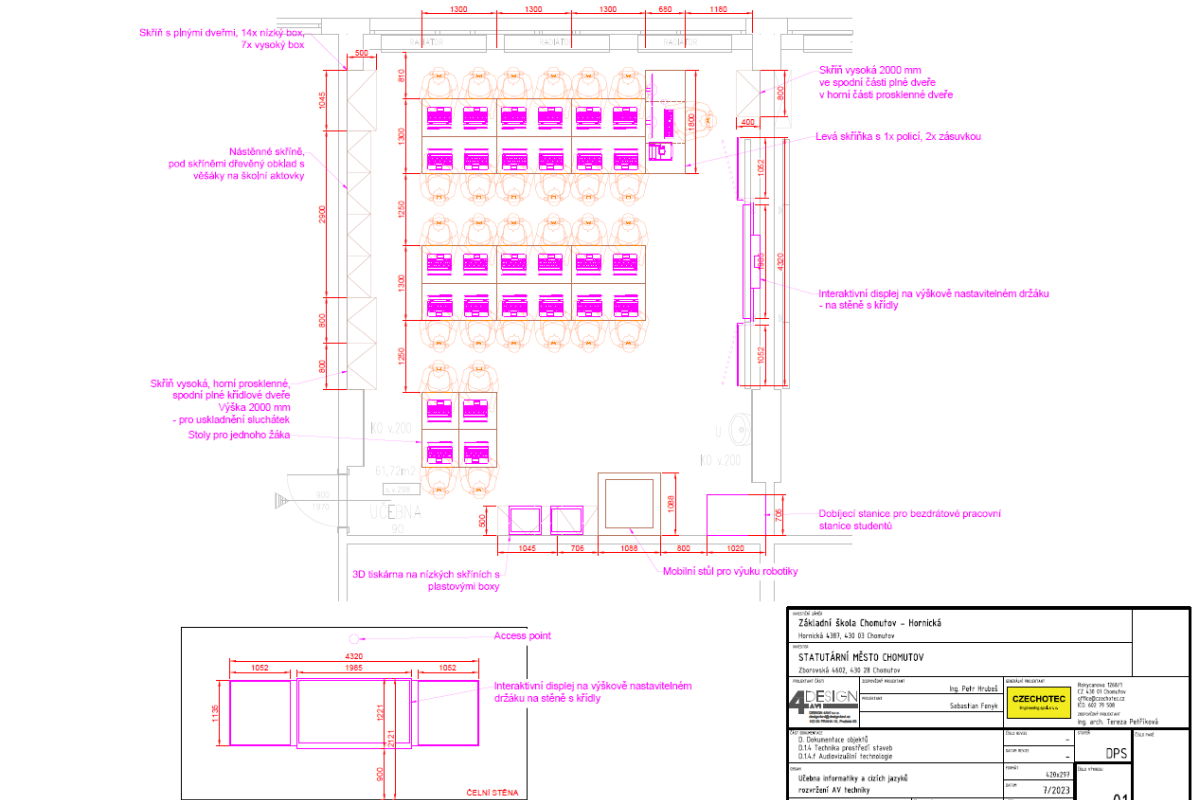
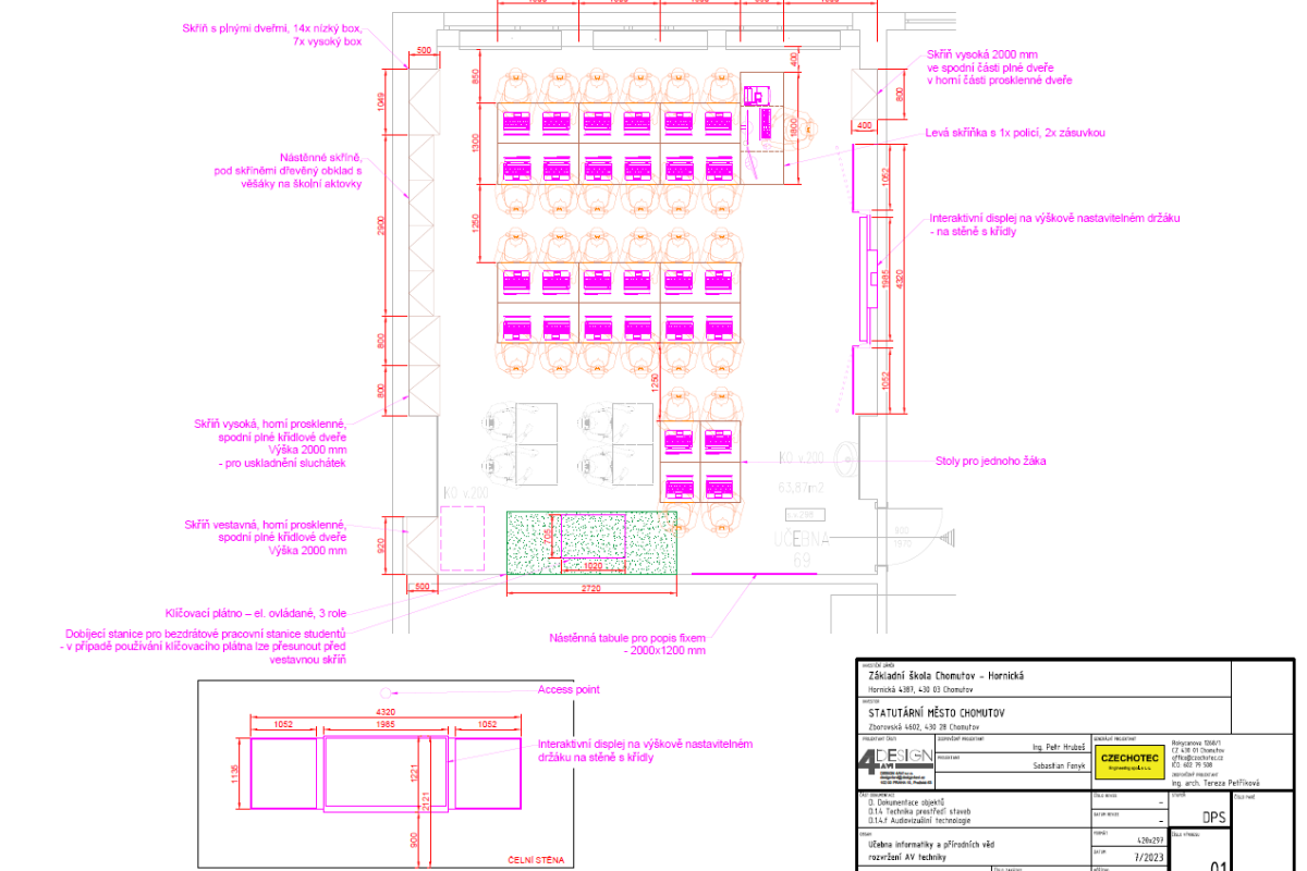
učebna cizí jazyky s využitím IT (69)
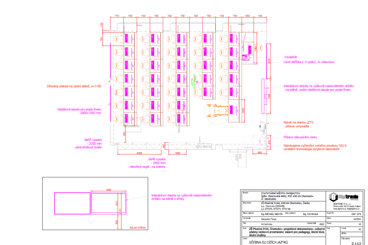
sekce 3. (ZŠ Chomutov Písečná 5144)
učebna cizí jazyky (42)
učebna přírodní vědy (fyziky) s integrovanou laboratoří (39)
Cílem zadavatele je modernizace infrastruktury odborných učeben (přírodních věd a cizího jazyka) na základních školách v Chomutově.
Součástí dodávky bude doprava do místa plnění, montáž, kompletní instalace nábytku v koordinaci s dodanou technikou.
Dodávka bude koordinována se zhotoviteli stavebních prací v odborných učebnách, kteří budou dílo realizovat rozčleněny na jednotlivé sekce. Dále bude dodávka koordinována s dodavatelem audiovizuální techniky a strukturované kabeláže.
Kontaktní osoba:
Projekt je financován Evropskou Unií